| İlan No | 20173 |
|---|---|
| İlan Tarihi | 5 Şubat 2026 |
| İmar Durumu | Konut |
| Metrekare | 740 |
| Metrekare Fiyatı | |
| Tapu Durumu | Türk Koçanlı |
| Kat izni | 2 |
| İmar Oranı | 50 |
| Krediye uygun | Evet |
| Kimden | Emlak Ofisinden |
| Takas | Hayır |
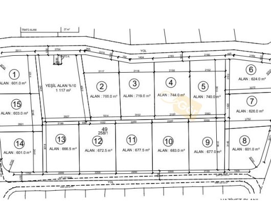
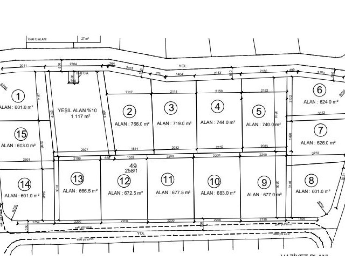
Girne boğaz'da çevreyoluna yakın konumda
601 m2 den 740 m2 ye kadar
2 kat izinli
%50 imarlı taban %30 üst kat %20
Türk koçanlı
Elektrik, su, asfalt ve telefon altyapısı mevcut
110.000 stg den 115.000 stg arası fiyatlar
Toplam 6 parsel kaldı
%35 peşin tapu teslim geri kalan ödeme veya farklı planlar için iletişime geçiniz.
detaylı bilgi için iletişime geçiniz.
Kayıt tarihi:
26 Ocak 2026, 18:26
Üyelik tarihi: 26 Ocak 2026
Mağazanın tüm ilanlarını görüntüle Danışmanın tüm ilanlarını görüntüle