Kıbrıs Lefkoşa – Modern Daireler

Kıbrıs Lefkoşa – Modern Daireler

Fotoğraflar yükleniyor

120.000 GBP 7.395.636,00 TL
İlan No 16240
İlan Tarihi 27 Aralık 2025
100
Oda Sayısı 2+1
Bina yaşı 0
Kat sayısı 2
Bulunduğu kat 1
Asansör Hayır
Banyo sayısı 1
Balkon sayısı 1
Isıtma Klima
Eşyalı Hayır
Kullanım durumu Boş
Site içi Hayır
Aidat .
Havuz Hayır
Otopark Var
Krediye uygun Evet
Kimden Emlak Ofisinden
Tapu Türü Belirtilmemiş
Kdv-Trafo Belirtilmemiş
Takas Hayır

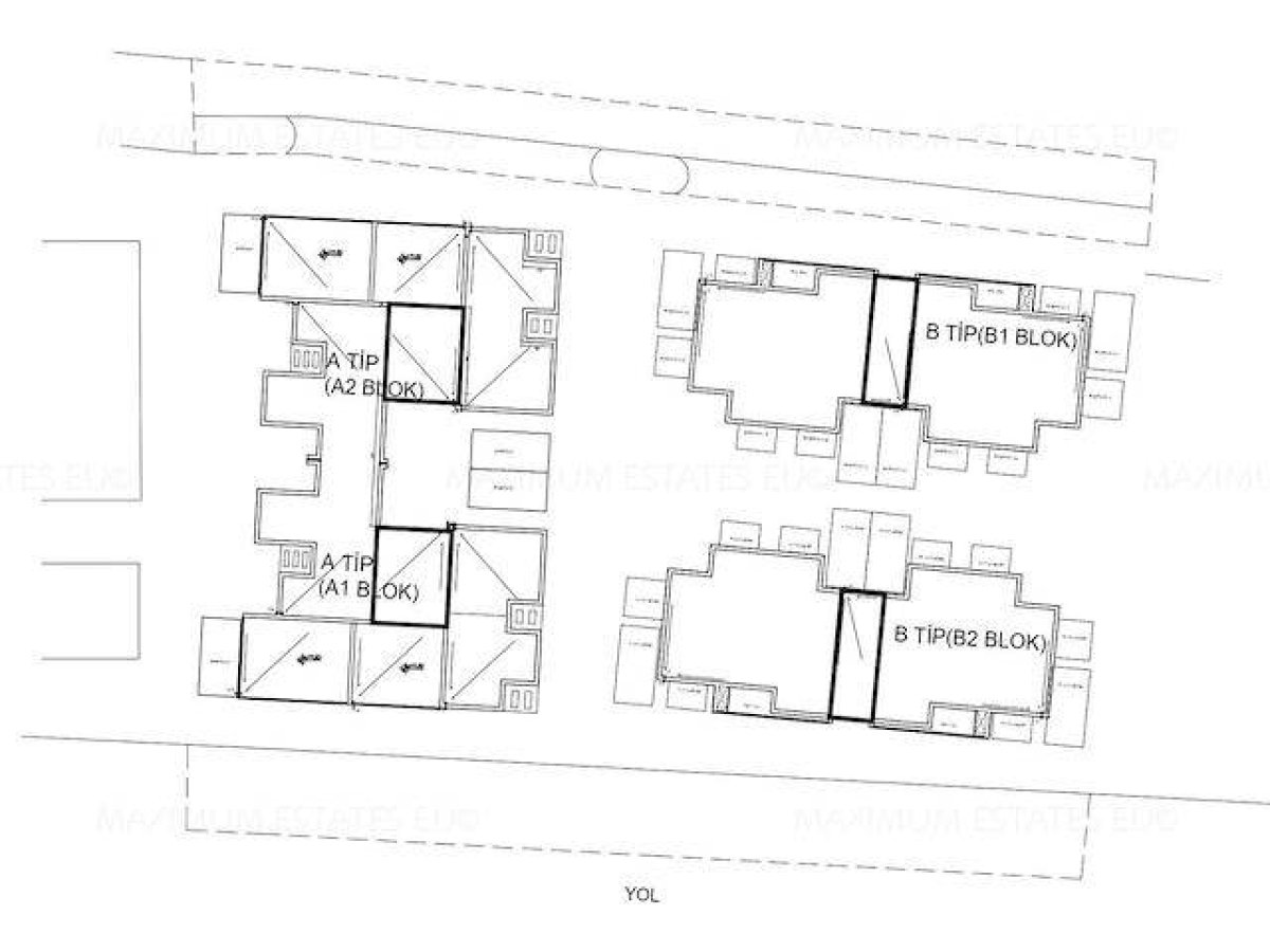
Kıbrıs Lefkoşa Modern Daireler

Lefkoşa bu iyi tasarlanmış konut Proje , yüksek kaliteli malzemeler ve modern yüzeylerle konforlu bir yaşam sunuyor. Daireler dayanıklılık ve estetik düşünülerek inşa edilmiş olup, hem yaşam hem de yatırım için mükemmel bir seçimdir.

İç Özellikler:

Geniş salon, mutfak, koridorlar ve banyolar 60x60 cm seramik zeminlidir.

Mutfak, WC ve banyo duvarları kısmen 30x60 cm seramik kaplı.

Dayanıklı sunta gövdeli ve 3 cm kalınlığında birinci sınıf laminat tezgahlı mat melamin mutfak dolapları.

Sağlam sunta iç mekanlara sahip birinci sınıf lamine yatak odası gardıropları.

Preslenmiş iç kapılar ve MDF panelli preslenmiş ana giriş kapısı.

Dış Görünüm ve Yapısal Detaylar:

Yalıtım ve enerji verimliliği için çift camlı beyaz PVC pencereler ve balkon kapıları.

Şık ve modern bir dokunuş için alüminyum merdiven korkulukları.

Üst katta 4 mm halı tipi su izolasyon sistemi ile yüksek kalitede su yalıtımı.

Uzun ömürlü dayanıklılık için dış duvarlar üç kat silikon esaslı akrilik boya ile boyanmıştır.

Ek Özellikler:

Ekstra konfor için bir asansör.

Kesintisiz su temini için 2 tonluk su deposu.

Tüm banyo ve WC'ler kaliteli armatürler ve cam duşakabinlerle donatılmıştır.

Klima üniteleri için önceden kurulmuş elektrik altyapısı.

PVC borulu ve dayanıklı döküm veya kompozit kapaklı yeraltı drenaj sistemi.

Dayanıklılık için beton bloklarla döşenmiş giriş ve otopark alanı.

Modern tasarım, pratiklik ve yüksek kaliteli inşaatı bir araya getiren bu Proje , Lefkoşa kalbinde konforlu ve güvenli bir yaşam ortamı sunuyor.

Ağustos 2025 Başlangıç Tarihi

Ağustos 2027 Teslim Tarihi

Note: All information is provided with the best efforts of accuracy, based on data received from the owners. Errors and previous sales are possible. Prices may be subject to change without prior notice. This presentation is preliminary information. The legal basis is only a notarized contract of sale.

Daha fazla bilgi almak için lütfen bizi arayınız veya direkt mesaj atınız:

TEKNİK ÖZELLİKLER
Cephe
İç Özellikler
Dış Özellikler
Engelliye Uygun
Muhit
Ulaşım
Manzara
Konut Tipi
Yorumlar
183 kez görüntülendi.

Maximum Estates EU

Kayıt tarihi:
15 Aralık 2025, 16:30

Maximum Estates EU

Üyelik tarihi: 15 Aralık 2025

Mağazanın tüm ilanlarını görüntüle
Danışmanın tüm ilanlarını görüntüle
1. Cep0533 835 07 15
WhatsApp0533 835 07 15
İlan sahibi: Maximum Estates EU (Maximum Estates EU)
Ara WhatsApp

Güvenlik İpuçları

Tanımadığınız kişilere kesinlikle para göndermeyin.

TC kimlik numarası ve cep telefonu numaraları aracılığıyla yapılması talep edilen para transferlerini gerçekleştirmeyin.

Alacağınız veya kiralayacağınız konutu görmeden, hiçbir sebeple kapora ve benzeri bir ödeme gerçekleştirmeyin.