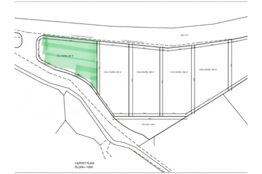
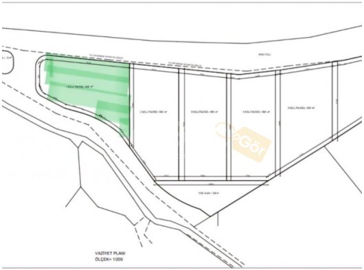
LEFKOŞA/DEĞİRMENLİK'TE SATILIK ARSA

LEFKOŞA/DEĞİRMENLİK'TE SATILIK ARSA

Fotoğraflar yükleniyor

70.000 GBP 4.324.516,00 TL
İlan No 10607
İlan Tarihi 22 Eylül 2025
İmar Durumu Ticari
Metrekare 1078
Metrekare Fiyatı 65
Tapu Durumu Eşdeğer Koçanlı
Kat izni 0
İmar Oranı 220
Krediye uygun Evet
Kimden Emlak Ofisinden
Takas Hayır
TEKNİK ÖZELLİKLER
Altyapı
Konum
Genel Özellikler
Manzara
Yorumlar
545 kez görüntülendi.

BlackBlanco Investment

Kayıt tarihi:
22 Ağustos 2025, 16:15

GÖKHAN GÜNEYLİ

Üyelik tarihi: 9 Eylül 2025

Mağazanın tüm ilanlarını görüntüle
Danışmanın tüm ilanlarını görüntüle
1. Cep0533 845 75 45
WhatsApp0533 845 75 45
İlan sahibi: GÖKHAN GÜNEYLİ (BlackBlanco Investment)
Ara WhatsApp